ISUZU NQR-90LK

Сміттєвоз (сміттєва машина) - вантажний автомобіль, призначений для збору, перевезення, преса і вивантаження сміття з території населених пунктів в місця утилізації або переробки (звалища або сміттєпереробні заводи). Кузов таких автомобілів має великий внутрішній об'єм (до 50 куб. М.).
Є кілька основних варіантів виконання таких автомобілів: вивантаження сміття з бака в контейнер або завантаження баків зі сміттям на майданчик. Вивантаження сміття з бака може бути організована декількома варіантами: ручна або механічна. Вивантаження бака в контейнер може бути в задній або бічній частинах кузовів. При варіанті завантаження баків зі сміттям на майданчик необхідно використання вантажопідйомного обладнання. Захват призначений для сміттєвих євроконтейнерів об'ємом до 1,1 куб.м.
Технічні характеристики
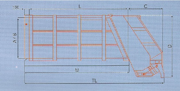
Об'єм бункера | до 50 куб. м. |
Коефіцієнт пресування | до 6:1 |
Механізм стиснення | прес-пластина з гідравлічним устаткуванням |
Захват | в бічній або задній частинах, передбачений для євроконтейнерів об'ємом 1,1 куб. м. |
Відеоспостереження | камера в задній частині |
| Універсальний ліфтер | регулювання від 240-1100 літрів |
Управління | за допомогою важелів або кнопкового пульта |
Сигнальне обладнання та доп. освітлення | ліхтар в задній частині, світлова панель на водійських кабіні |















